Werribee Centre
ADDRESS: 74-76 Cottrell Street Werribee VIC 3030

Country Charm meets city Style.
This state-of-the-art development will create a significant landmark in the area, featuring an Allied Health Centre, a childcare facility, retail units, and corporate offices, all equipped with private kitchen and bathroom facilities, alongside ample onsite parking for 221 vehicles.
Features
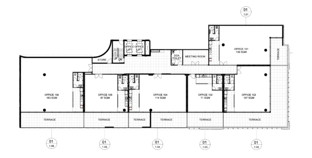
- Office Spaces from 71 – 200 sqm
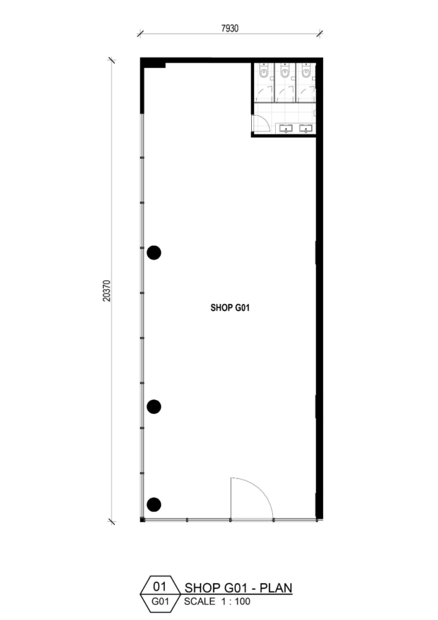
- Retail Units from 164 – 274 sqm
- Allied Health 653sqm
- Childcare facility for 106 children
- Parking 221 Spaces
The Area
Invest in the future of Werribee, one of Australia’s fastest-growing municipalities, now. This up-and-coming area is attracting new market players and is conveniently located just minutes from public transportation, the town center, and a host of amenities, including cafes, restaurants, schools, hospitals, and shops.




















